Lika's woningindeling

Vaak lopen woningeigenaars al tijden rond met allerlei ideeën over een verbouwing of aanbouw. Maar regelmatig zien ze dan ook door de bomen het bos niet meer. Lika's zet de ideeën om in tekeningen, voegt er zonodig nog iets aan toe, en geeft en overzicht van de de voor- en nadelen. Op deze manier kunnen de bewoners makkelijker een beslissing nemen. Door de expertise op zowel woning- als tuinvlak, worden alle aspecten in de voorstellen overwogen en komt u uiteindelijk uit op de meest optimale situatie voor zowel woning als tuin.
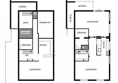
Woningen met onpraktische indelingen staan soms lang te koop. Lika's biedt aan makelaars de mogelijkheid een aantal alternatieve woningindelingen te ontwikkelen, opdat potentiële kopers beter kunnen zien welke mogelijkheden een woning biedt. Soms zijn relatief kleine ingrepen voldoende om de kwaliteiten van een woning sterk te verbeteren.
Natuurlijk kan Lika's ook met particulieren meedenken over verbouwingen of vergrotingen van de woning.
Projecten:
Verbouwing en uitbouw woonhuis, Ermelo, 2021
Verbouwing en uitbouw woonhuis, Ermelo, 2013
Verbouwing en uitbreiding boerderij, Zwolle, 2011
Verbouwing woonhuis, Ermelo, 2011
Verschillende projecten, Ghana, 2004-2010

create websites